تصميم منزل دور واحد اقتصادي
جدول المحتويات
تصميم منزل دور واحد اقتصادي يأتي ضمن أكثر أنواع المنشآت السكنية التي يُقبل عليها عدد كبير من المواطنين اليوم نظرًا إلى أنها تكون ذو تكلفة منخفضة وسعر اقتصادي من جهة، ومن جهة أخرى تكون ذو شكل جمالي مميز وأنيق، وهناك العديد من خطط تصاميم وأشكال الإنشاءات الهندسية الخاصة ببناء بيت أو منزل مكون من طابق واحد وعبر موقع المرجع لاحقًا سوف يتم توضيح أجمل هذه التصاميم بالتفصيل.
خطة تصميم منزل من دور واحد
يتم إعداد التصاميم فعليًا عبر بعض البرامج الرقمية الخاصة بالحاسوب مثل برنامَج SmartDraw أو Autocad أو غيرهم من أجل تقديم تصاميم هندسية احترافية للمنشآت بدلًا من الطريقة اليدوية، وهناك مجموعة من العوامل الأخرى التي يجب أخذها في الاعتبار عن تصميم منزل من طابق واحد، مثل:
- المرونة في التصميم: وهو يُعني إمكانية أن يكون هذا التصميم مناسب لأي وقت ولأي استخدام، مثل أن يتم تحويل واحدة من الغرف مستقبلًا إلى غرفة معيشة أو غرفة مكتب أو غير ذلك بسهولة.
- التخطيط الاحترافي للغرف: وهو لا يُعني التقسيم الداخلي وإنما يُشير إلى أهمية أن تكون غرف النوم على سبيل المثال بعيدة عن أماكن الضجيج في المنزل مثل غرف الاستقبال أو المعيشة، وألا تكون دورات المياه في واجهة غرف المعيشة أو السفرة، هكذا.
- وضع أهم الأولويات قبل التصميم: بعض الأشخاص يكون المنزل بالنسبة إليهم هو مكان الراحة والهدوء فقط، والبعض الآخر يقوم بإعداد جزء من عمله من المنزل، وهنا لا بُد من تحديد نمط الحياة أولًا قبل التصميم، لكي يتم التصميم على بناء صحيح، مثل إعداد غرفة في مكان هادئ للمكتب لمن يقوم بإتمام العمل في المنزل وهكذا.
- التفاصيل الجمالية والعملية: عند تصميم المنزل؛ يجب عدم التركيز على المظهر الجميل الجذاب فحسب؛ وإنما يجب أن يكون المنزل مناسب للمعيشة وملائم للحفاظ على سلامة الأطفال وملائم أيضًا لاستخدام وسائل التدفئة أو التبريد والتنظيف وهكذا.
خطوات تصميم منزل دور واحد جديد
هناك مجموعة من الخطوات التي يتم اتباعها من قبل المتخصصين عند الرغبة في إعداد تصميم منزل أو بيت مكون من دور واحد، وهي:
- تحديد المساحة أولًا التي سوف يتم بناء المنزل الصغير عليها والتي تتراوح بين 150 إلى 200 متر، والتي لا حدود لها للمنازل الكبيرة.
- تحديد المنطقة التي سوف يتم إنشاء المنزل بها وجميع جوانبها ومواصفاتها.
- تحديد الأبعاد الخاصة بالغرف والجدران والأجزاء الداخلية والخارجية جميعها، ويُمكن هنا الاستعانة بتصاميم بعض المنازل التي تأتي بنفس المساحة، لمعرفة طبيعة الأفكار المتاحة، ومن ثم الوصول؛ إلى الفكرة المناسبة للمنزل الجديد.
- رسم جدران كل غرفة كاملة، ومحاولة التوفيق بين مساحات الغرف والجزاء الموجودة خارجها بحيث تكون أقل من المساحة الكُلْيَّة المتاحة بمقدار 10 إلى 20 متراً على الأقل.
- تحديد أمكان الأبواب والنوافذ والأعمدة وأي أجزاء ديكورية أساسية أخرى سوف تكون ثابتة ولن يتم تغييرها مستقبلًا، حيث إن الرسم الهندسي يتضمن فقط على الأجزاء الأساسية بالمنزل.
شاهد أيضًا: تصاميم فلل صغيرة مساحة 200 متر
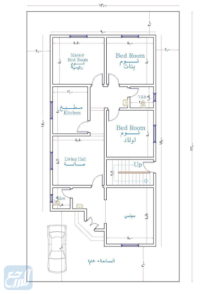
تصميم منزل دور واحد اقتصادي
إن التصميم هنا يُشير إلى طبيعة الرسم الهندسي والتقسيم وخطة إنشاء المنزل التي يتم الاعتماد عليها في أثناء عملية البناء من أجل الوصول إلى التصميم والشكل المطلوب للمنزل في نهاية الأمر، وقد يتم الاعتماد على برامج الرسم الهندسي من قبل المهندس المعماري بالرجوع إلى مهندس حر أو أحد المكاتب الهندسية أو غيرها، حيث إن صاحب المنزل هنا عليه توصيل الفكرة العامة التي يرغب في أن يكون تصميم المنزل عليها إلى المهندس، ومن ثم؛ يتم التوفيق بين المساحة والمنطقة وبين رغبة المستخدم بهدف الوصول إلى أفضل تصميم ممكن، ومن الأمثلة على تصميم منزل دور واحد اقتصادي ما يلي:





تصميم منزل ريفي دور واحد
إن الأهالي في مناطق الأرياف والقرى دائمًا ما يفضلون الإقامة في منازل مكونة من طابق واحد نظرًا إلى نمط حياتهم القائم على التواجد بالأراضي طوال الوقت ومن ثم؛ يكون الطابق الواحد على اختلاف مساحته هو الأنسب لطبيعة علمهم وحياتهم في أغلب الأحيان، ويوجد عدد كبير من تصميم المنازل الريفية الجميلة والأكثر من رائعة والي تكون من طابق واحد أيضًا ويكون حجمها صغير لا يتعدى الـ 200 متر، ومنها ما يلي:



شاهد أيضًا: تصاميم فلل دور واحد فخمة 2021
مخطط بيت دور واحد سعودي
في العديد من مدن ومحافظات المملكة العربية السُّعُودية وعلى الرغم من إمكانية بناء منازل ذو طوابق متعددة بعد الحصول على الترخيص؛ إلا أن الكثير من أهالي المملكة والمقيمين بها أيضَا يفضلون بناء أو اقتناء المنازل المكونة من دور واحد فقط؛ نظرًا إلى أنها تكون اقتصادية سواء فيما يخص تكاليف البناء أو سعر شراء المنازل التي تكون مبنية بالفعل أو إيجارها، إلى جانب أنها دائمًا ما تأتي بتصاميم غاية في الروعة والجمال عند المقارنة مع المنازل ذو الطوابق المتعددة ومن أجمل نماذج مخططات بيوت سُعُودية مكونة من طابق واحد فقط، ما يلي:





شاهد أيضًا: صور ديكورات جبس اسقف راقية 2021 شقق وفلل
تصميم بيت امريكي دور واحد
إن البيوت والمنازل التي تأتي على النظام الأمريكي أصبحت من الموديلات والنماذج التي تنال إعجاب عدد كبير من أبناء المملكة والدول العربية، نظرًا إلى أنها تجمع بين البساطة والجاذبية والجمال سواء على مستوى التقسيم الداخلي للمنزل أو المظهر الخارجي له، إلى جانب وجود العديد من نماذج البيوت الأمريكية التي يُمكن من خلالها استغلال المساحات داخل المنزل بشكل احترافي وعملي حتى وإن كانت مساحة المنزل أقل من 200 متر، ومن أجمل أمثلة تصميم بيت أمريكي دور واحد، ما يلي:




تصميم منزل دور واحد مع ملحق
الملحقات الصغيرة في الخارج تُساعد على إعداد مكان مجلس لقضاء أوقات طيبة به أو استغلال هذا الملحق في وضع برجولات أو استخدامه كجراج للسيارة أو غيرها من الاستخدامات الأخرى، ونظرًا إلى أن المنزل المكون من دور واحد ربما تكون المساحات المتوفرة من خلاله صغيرة؛ فإن وجود ملحق مع المنزل يُسهل يكون مفيد للغاية ويُمكن استغلاله في العديد من الأغراض، وهناك بعض التصميمات التي من شأنها أن تُحافظ على وجود مكان خاص لهذا المُلحق دون التأثير سلبيًا على المظهر العام للمنزل، ومن أجمل أشكال تصميم منزل دور واحد مع ملحق، ما يلي:


تصميم منزل دور واحد مودرن
إن الطراز الحديث الذي يتسم بالبساطة والفراغات الكبيرة والديكور غير المتكلف داخل المنزل أصبح هو مقصد عدد كبير من الأفراد اليوم بعد أن سئم البعض الزخم الديكوري في الأنماط الكلاسيكية، ولذلك؛ نجد أن معظم المنازل التي يتم بنائها حاليًا تأتي على الطراز المودرن سواء في التقسيم أو التخطيط أو الديكور أو مظهر المنزل من الخارج أو الداخل، ولقد تبارى المهندسون المعماريون في تقديم أجمل أشكال المنازل ذات المساحة الصغيرة والطراز الحديث المودرن أيضًا مثل:



شاهد أيضًا: مخططات فلل سعودية مميزة ورائعة
خطوات إنشاء منزل دور واحد
بعد الاستقرار على التصميم المناسب وتحديد المساحة والمنطقة أيضًا والنمط الأساسي المطلوب للمنزل يتم التوجه إلى أحد المكاتب الهندسية الذي سوف يقوم بتنفيذ تصميم ومخطط المنزل المطلوب وفق ما يمتلكه من مقومات وأدوات، ثم الانتقال إلى المقاول الذي سوف يتولى عملية تنفيذ المنزل على أرض الواقع من خلال إحضار المواد والأدوات والأيدي العاملة المطلوبة للبناء، ووضع جدول زمني للانتهاء من بناء المنزل، ومن ثم تبدأ أعمال البناء على النحو التالي:
- استخدام أدوات الحفر من أجل حفر الأرض التي سوف يتم بناء المنزل عليها بالعمق الذي يسمح بوضع أساسات وقواعد المنزل به.
- الرجوع إلى المخططات التنفيذية الهندسية والبدء في وضع دعامات الأعمدة وأجزاء حديد التسليح وتثبيتها.
- ملء الفراغات الموجودة بين أجزاء وعناصر الأساسات بالرمل.
- البَدْء في بناء أساسات الجدران وكذلك الأعمدة عبر صب الخرسانة الأسمنتية بها.
- بناء بلاطات الطابق والأسقف وأيضَا الجدران الداخلية.
- الرجوع إلى المخطط الخاص بالتصميم الهندسي من أجل تمديد أعمال الكهرباء والميكانيكا بشكل سليم.
- البَدْء في عملية البياض الأسمنتي لكل أجزاء الخرسانة (التبطين).
- يلي ذلك تركيب إطارات الأبواب والنوافذ.
- تركب غطاء الأرضية سواء سيراميك أو بلاط عادي أو خشب باركيه أو رخام أو غيرهم.
- تركيب أي أجزاء ديكورية أساسية تتطلب تركيبها قبل عملية الدهان سواء في السقف أو الجدران.
- عرض العمل على المالك، وإضافة أي لمسات جمالية أو ديكورية أخرى يطلبها حسب الرغبة.
ختامًا، مع الوصول إلى نهاية هذه المقالة؛ يكون قد تم عرض أجمل وأفضل وأحدث تصميم منزل دور واحد اقتصادي ذو حجم ومساحة صغيرة سواء المنازل الريفية أو الحضرية وأيضًا المنازل المودرن والتي تأتي على الطراز الأمريكي، مع التطرق إلى أهم خطوات إعداد وإنشاء تصاميم بيت مكون من طابق واحد وخطوات البناء والإنشاء أيضًا بالتفصيل.




















